
大家好,这里是楼花网。
华润置地位于北京温榆河板块的新项目“北京润园”规划信息近日披露。
项目总建筑面积约17.27万平方米,容积率1.01,规划为低密度别墅社区。
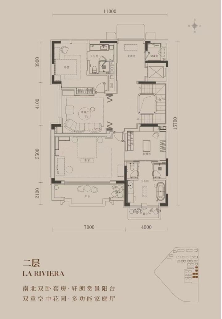
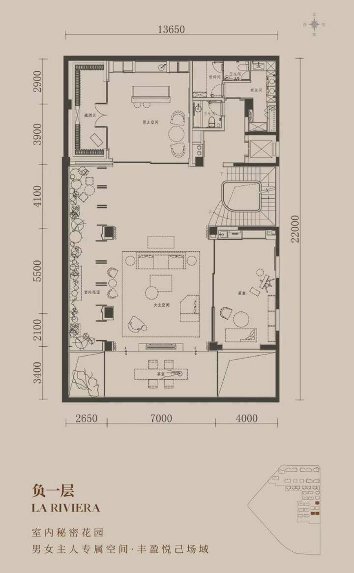
1、院墅建面约700㎡-990㎡
其中,主力产品为建面约700至990平方米的院墅。990平方米主力户型主打“四代同堂”居住理念,采用分层功能设计:
项目注重庭院与采光设计,每层均配置露台或功能厅。
地下空间设计为会所式功能区,包含天光泳池、桑拿房、健身房及休闲社交区。
该产品通过分层布局实现多代家庭居住的独立性与互动性平衡,体现出当前高端住宅市场对家庭结构和生活场景的细化回应。项目具体售价及推盘时间尚未公布。





















2、空墅建面约329㎡
双层墅居,庭院平权,IMAX无界光感,最长约8米超阔采光面。



3、平墅建面约271-328㎡
平层小家化,无界全景舱,最长约9米采光面,最大约4.2米进深空中庭院。



打底三面宽起+1室,大面积,奢阔面宽,四居五居。
中央别墅区收官之作,华润鼎豪系首发,室内设计国际大腕,目标豪宅爱好者的收割机。
项目总平图于8月4日-12日进行公示,公示期结束次日通告采信情况,赶在“好房子”卡节奏前拿下了建设工程规划许可证。
规划用地面积17.04万㎡,总建面约36.78万㎡,容积率1.01。其中:
地上建面约17.27万㎡,计容建面17.21万㎡。
共111栋住宅楼,共483户:19栋8层洋房+92栋双拼别墅。
一条东西走向的街坊路,将北侧洋房与别墅之间隔离开来。




项目充分利用低密墅区规划打造庭院景观,将社区内的水系景观结合外部温榆河公园,做出一溪一环三轴九境的多组团景观节点。
园林不再是被建筑围合的人工手笔,而是整个铺展于住区,让建筑自然点缀在景致中。
同时考虑到北京四季鲜明的气候特点,用不同植被来实现景观的天然更迭。





5条风雨连廊+4座大门+3栋邻里共享空间+2处下沉庭院+1个架空层。
整体打造了南北两条景观轴,洋房区双会所体系,别墅区中央广场带。
1#大门位于小区北侧,为车行出入口。
2#大门位于东侧两排洋房之间,门前设有出租汽车站。
进门直行两栋配套楼为邻里共享公共空间,北边1#住宅楼首层局部架空,也是项目唯一有架空层的楼栋,以小型商服功能为主。
风雨连廊将邻里空间和架空层串联,再往前为大面积的下沉庭院,形成社区主会所。
4#大门也在洋房区,位于小区西侧,街坊路与安悦路交口。
进门为另一处面积较小的下沉庭院 社区管理服务用房,形成第二会所空间。
356平米的室外活动场地也在西门入口处。
3#大门在别墅区正中央的位置,南北两侧各6排楼。
与风雨连廊围合成中央广场,居中设有迎宾水系。
白色廊柱和墙体,对衬式设计,呈现法式古典建筑风格。
再往里是物业服务用房和邻里共享空间,向内连接一整条景观轴,结合两侧庄园式别墅,凯旋门延伸至香榭丽舍大道的即视感。



拿地回溯:两地块“合二为一”
2月27日,华润置地以底价60.24亿元摘得顺义温榆河2101-2007、2008地块,折合楼面价约3.5万元/㎡。
项目地上建面合计17.21万㎡,限高24米(局部27米),容积率仅1.01,堪称北京容积率最低的宅地之一。
目前市场上能与这个容积率对标的项目是懋源云纪,在后沙峪板块,两个项目距离5公里左右。
位置上,华润置地温榆河地块更靠近市区,且紧邻温榆河,周边有成熟的社区及生活配套。
懋源云纪占地17.11公顷,1.1的容积率,规划16栋洋房和135栋别墅,其中有15套独栋。5月28日取得预售证,销售指导价6.1万/㎡。
上一篇:保利半壁店豪宅项目推进迟缓 合作方北京建工或退出
下一篇:华润置地温榆河新盘北京润园规划曝光,主打990㎡四代同堂墅型