
大家好,这里是楼花网。
丰台岳各庄新地块定名“嘉棠璟樾”,规划还没出,户型图就先流出来了!
这节奏,明显是想复制建工在怀柔的爆款项目——嘉棠澐玺。
怀柔“神盘”战绩回顾:5月拿地,9月开盘,220套房2个月卖掉203套,基本清盘。速度碾压北京多数项目!
丰台新盘三大看点:
怀柔的成功靠低价快跑,但丰台地价成本高,“快周转+高性价比”的打法还能否复制?
这才是真正的考验!

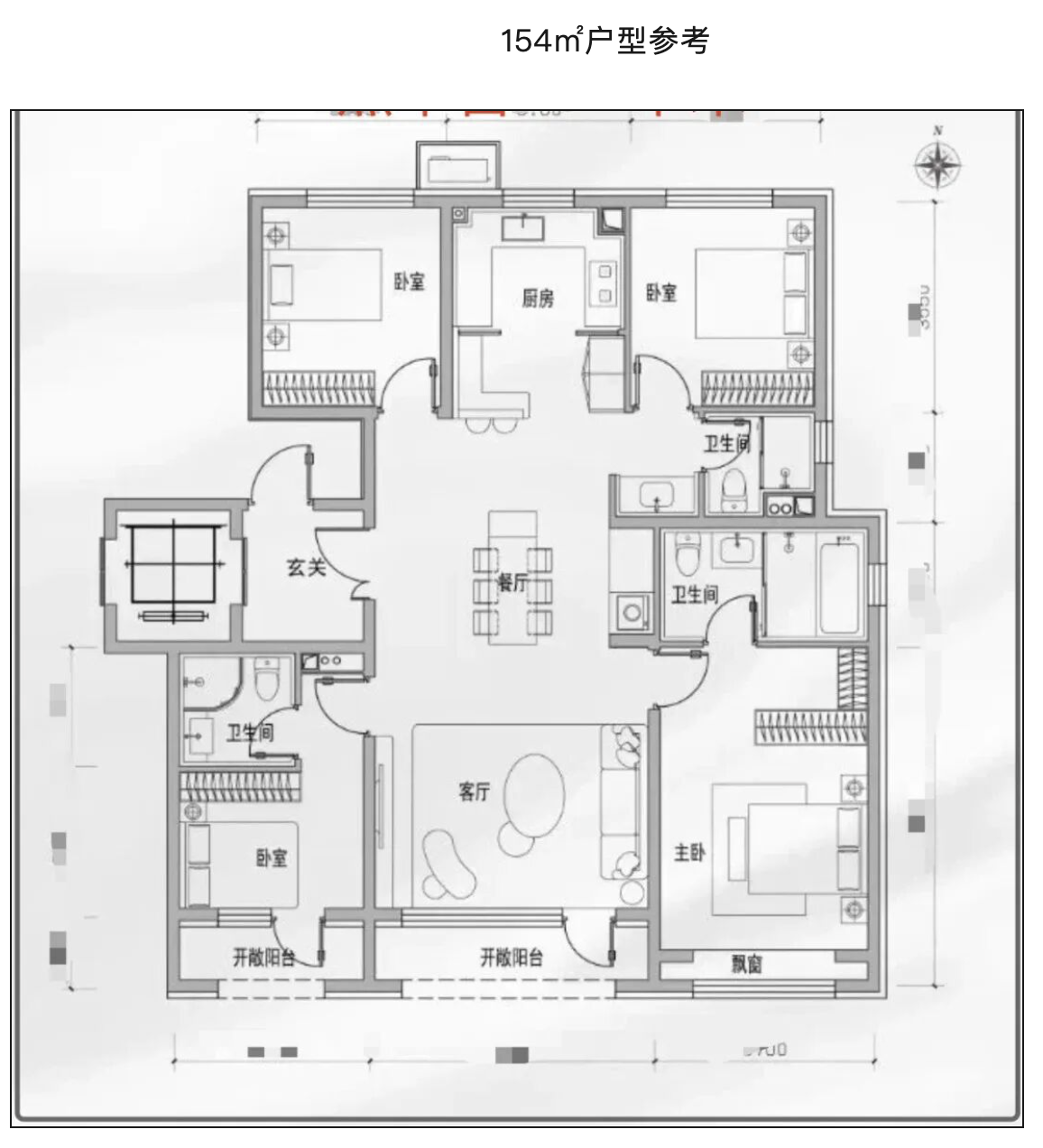
(图源:公众号“嘉棠璟樾”)
案名出炉后,不等设计方案总平图公示,户型草图和立面、会所的效果图先曝光了。
按照网传信息,项目规划7栋17层小高产品,总计400余户。
采用中轴对称庭院布局,融入“好房子”政策要求,配备阳台、架空层、复层园林等设施。
面积段99㎡/116㎡/136㎡/155㎡/176㎡,三至四居,定位偏改善,综合得房率90%以上。


起步99㎡户型,三居两卫。
房型狭长,进深面宽比接近2。
做了当下比较主流的功能型格局,入户门进来是中间的开放式厨房+公卫+家政间等功能空间。
南向两面宽,客厅+主卧套房,双联阳台,客厅送了一整墙的侧边飘窗。
北边两个小卧室,其中一个赠送设备平台。
其作户型均为三面宽,可以参考熙华台的同面积段产品,叠加扩容空间。



项目所在丰台岳各庄村DC-L01地块成交于9月5日,由城建发展+住总+北京建工联合体以29亿元底价摘得,折合楼面价5万元/㎡。
开发主体北京建兴丰汇置业有限公司9月23日成立,注册资本29亿元。
城建发展控股48%,建工旗下北京建邦憬瑞房地产开发有限公司持股42%,住总旗下北京金第房地产开发有限责任公司持股10%。
项目公司法定代表人、董事长为李峰,总经理为李京昆。
嘉棠璟樾位于三环、四环之间,离海淀近,能实现“住在丰台、学在海淀”。
规划建面5.8万㎡,容积率2.66,限高60米(局部80米)。
南侧不远处就是北京十一中堂实验学校,今年高中部今年将招收首届学生。
周边生活配套完善,有中国人民解放军总医院第五医学中心、千禧购物中心、银座和谐广场、万丰公园等。
但是城市界面一般,住宅以老破小居多,大多为经适房、公房。
次新二手房紫辰院的挂牌价8万+,保利和光逸境能达到9万/㎡。
嘉棠璟樾楼面价5万元/㎡,定价空间还是很充裕的,目前吹风价是7.5万/㎡。
地块对于规划设计提出了一些具体要求,包括多层居住建筑应采用坡屋顶形式;建筑设计体现中国特色、古都风韵、时代风貌等。
从地形来看,这块地东西窄而南北长,楼栋排布上不利于释放面宽资源。
另外,项目距离地铁10号线六里桥站步行约2公里,轨交出行不友好。
还有就是大部分丰台地块的通病,有铁路。
项目北侧就是北京西站车辆段,噪音是一个需要考虑到的不利因素。
上一篇:84亿起!海淀压轴土拍登场,科技园旁再添黄金地块
下一篇:北京楼市11月13日成交数据曝光!二手房碾压新房10倍!