
大家好,这里是楼花网。
近日,西红门6030地块案名出来了:兴创万象茗筑。
核心信息:
大兴西红门新盘兴创万象茗筑亮相,555户纯新社区
户型60-130㎡,精准狙击首置与刚改客群
信号:在大兴“大平层”风潮中,用“极致功能小户”实现降维打击
为什么小户型是“王炸”?
大兴近两年新盘趋势:疯狂做大平层(180㎡+),总价800万+
万象茗筑策略:回归60-130㎡,总价锚定300-600万
逻辑:抓住被市场忽视的真实首置、二胎刚改基本盘
户型解剖:
91/103㎡两面宽三居:保证基本功能性,控制总价
130㎡四叶草四居:满足多孩家庭终极功能需求
60㎡小户型:罕见供应,可能是“投资/上车神器”
定价猜想:
西红门新房均价5.5-6.2万/㎡
本项目预计售价5.5-5.8万/㎡
溢价逻辑:“稀缺小户型+高功能得房率+低总价门槛”
从过程版户型图来看,优势很明显:
1、南向奇偶阳台,挑高六七米,空中小院的感觉。
2、北向通面宽设备平台,面积全赠送。
3、超大转角飘窗,采光面、空间感绝绝子。
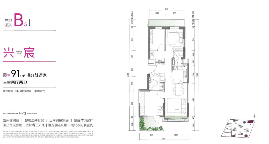
↑91㎡洋房中户
(1#奇数层、8#/9#偶数层)
整体动线紧凑,几乎没有纯走廊或闲置面积。
收纳空间做得很足,包括门外还有个类似仓库的小空间。
功能分区完整,有独立家政间,大餐桌与厨房接连,烹饪到就餐的动线很舒服。
另外还有一个小创意,公卫的洗手台被移到了家政间区域,形成“洗漱 洗衣 储物”的复合功能区,提高家务效率,也减少了小户型单独设置家政间的面积消耗。
赠送方面,图中铺绿底的空间全赠送,目测实得率应该有90% 。
南边这个浮岛式大露台,给了主卧多种想象空间。 
↑103㎡高层边户
(4/5/9# 偶数层、2/3/6/7# 奇数层)
两面宽的大三居,没有过度追求房间数,而是把最优质资源都集中到了公区。
喜欢社交大客厅的人看到这个户型绝对是一眼万年。
南向8.45米的面宽,做出了5米的大宽厅。超大转角飘窗,除了拉高得房率,还让采光面和视野都无敌惊艳。
整体的布局是以客餐厨为中心,三个卧室有序延展。
主卧私密性非常好,小家化设计,卫生间、衣帽间一应俱全,最棒的是拥有一个可以独处的小院。 
↑130㎡高层中间户
(4/5/9# 偶数层、2/3/6/7# 奇数层)
经典四叶草格局,客餐厨南北通透,空间感不输150平的大平层。
朝南的两个卧室都给配了露台,其中次卧的露台比主卧还大,有1.8米的进深,主打一个亲近自然。
客厅南向赠送看形式是花池,比飘窗赠送尺度更大。
北边跑道式设备平台,期待样板间的展示效果,据说下周就能开放。

西红门6030地块由北京兴创置地房地产开发有限公司(简称“兴创置地”)2024年9月以底价22.25亿元摘得。
住宅楼面价折算约3.62万元/㎡,销售指导价6.6万元/㎡。
项目开发主体为北京和盛臻品房地产开发有限公司,成立于2024年10月31日,由兴创置地100%持股,孙海滨担任项目公司总经理。
西红门板块位于大兴区最北,是距离市中心最近的区域,城市界面整体较新,无老旧小区,地铁和商业的快速发展使该板块近年来陆续成交了多幅住宅地块。
周边新盘众多,南边是御璟星城元启,今年4月份调规后,8月份重新开始网签,成交均价5.2万元/㎡。
北侧西红门橡树湾二期由中铁置业、华润置地、兴创置地联合开发,共456户已于去年底集中交付;
三期文园2023年9月开盘,目前网签八成,成交均价约5.8万元/㎡。
中建玖玥府2023年12月开盘,共1106套住宅,也是基本到了尾盘出清期,成交均价6.1万/㎡。
此外,东边的6038地块11月4日成交,由中建壹品 湖北联投以19.04亿元底价摘得,规划建面约6.35万㎡,折合楼面价3万元/㎡,目前也已在报规阶段。
上一篇:中建方程“偷面积”玩出花!国贤府样板间曝光,北向装饰架变身“白送”阳台!
下一篇:北京主城楼市,领头马来袭