
每一个楼花,都是独一无二的。这里是楼花网。
9月30日,国庆节前一天,北京会拍出两地块。
朝阳区太阳宫0627地块,以及门头沟四道桥0006地块。
花姐预计,拍地结果,一热一冷。
因为热门,充满不确定性,花落谁家,没法猜;因为冷门,大概能猜到,八九不离十。
离开拍的前20天,门头沟0006地块的买家就浮出水面了。
北京海赋丰业房地产开发有限公司发出三条招标计划, 有关监理、设计和施工,投资估算也出来了,约4.54亿元。
这个海赋丰业的母公司,是电建地产集团。
虽说发出招标计划,不等于完全落袋为安,但门头沟楼市,大多数房企不敢去冒险。
但,电建地产愿意去托这个底。
花姐判断,它有两个理由:
1、去年,电建地产在门头沟推出的长安华曦府,卖得火爆;
2、七年前,电建地产联合一家民企,拿下门头沟区永定镇11块地,七年只卖了三套房。
中国有句谚语,哪儿跌倒,哪儿爬起来。
电建地产决心在门头沟,再复刻一个长安华曦府的神话。
两个小硬伤
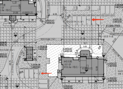
门头沟0006地块,是MC00-0605街区的一小部分。
它临近西六环外,紧邻地铁S1线四道桥站南,算是门头沟最好的地块之一。
该宗地不大,用地规模约2.04公顷,规划地上建筑面积约4.07万平方米,容积率2.0,建筑高度45米,起拍价9.57亿元。
虽然是纯住宅,但规划条件蛮苛刻的:
1、建筑色彩。主体色以白色、浅灰色为主,可采用艳度较低的黄、红-黄色相,不宜采用其他色相。
2、外立面。建议采用平顶,不得使用穹顶、尖顶;屋顶设计应简洁现代,避免出现中国古建筑屋顶形式;建筑屋顶以高明度米白色系为主,鼓励墙顶统一主体色。
这让开发商发挥的空间受到了限制。

此外,0006地块周边,还有两个不可移动的东西:
1、北面距离地铁四道桥站约200余米,在地块与地铁站之间,有多条空中高压线。
2、最南面的中偏西位置,凹出一块,那是不可移动文物:四道桥龙王庙。正方形,面积200平米左右。
这一南一北的两个小硬伤,如果购房者很介意,那得仔细斟酌斟酌。
跌倒与爬起
0006地块往西1.6公里外,就是长安华曦府。
它是门头沟区2025年上半年的销冠。累计完成网签541套,成交面积5.62万㎡,均价4.51万/㎡,成交25.33亿元,操盘手为荆月林。
去年8月底,电建地产带方案拿下了门头沟0604街区的0104-01、0107、0104-02地块,总价16.36亿。
其中住宅用地面积3.26㎡,建筑面积5.87㎡,规划18栋10-11层小高层共581套住宅。
长安华曦府主力面积段为78-118㎡三居,共411套,房源占比超七成;另有140套116-233㎡四居,以及20多套建面130-234㎡复式房源。
与0006地块相比,长安华曦府的容积率和建筑控高都更低,分别是容积率1.8和36米。
有人说,长安华曦府的成功,是因为有了股东贝好家的助力。不知贝好家是否会继续出手0006地块。
或许,因为电建地产在长安华曦府的卓越表现,它乘势夺回了七年前门头沟那个老盘的操盘权,并重新包装成泷悦玖宸。(详见《电建地产,谁的泷悦玖宸?》)

开盘五年以来,泷悦玖宸三易案名,却只卖出过三套房,但都以退房而告终。
泷悦玖宸已领证488套叠墅,每套232-510㎡。由于地段太偏,加上产品过时,电建地产也很难令它起死回生。
在泷悦玖宸身上,电建地产砸了不少钱,光地价就付出了近30亿元。该地块总价46.5亿元,由电建地产和隆泰实业分别持股63%和37%。
七年了,加上建安成本等,这是一笔巨额的财务费用。
杯水车薪
从门头沟跌倒,就从门头沟爬起来。
电建地产董事长王海波不信邪,决心继续深耕门头沟。当然,这依然是长安华曦府给了他信心。
长安华曦府的优秀表现,张然功不可没。他是电建地产门头沟分公司负责人,北京项目管理二部总经理。前不久,张然成为了泷悦玖宸的法人代表。
或许王海波心里很清楚,泷悦玖宸注定是要打持久战的,想快速提升电建地产业绩,只能寄望用快消品来对冲。
从地段上看,0006地块更优于长安华曦府,离六环和地铁站更近,且没有配建。
不过,即便电建地产顺利将0006地块拿到手,也像长安华曦府一样热卖,对于整个电建地产来说,也是杯水车薪。
因为它的日子,目前也不好过。

2024年度实现营业总收入123.35亿元,同比下降28.97%;净利润亏损23.07亿元。
截至2024年末,现金及现金等价物余额80.69亿元,同比减少18.74%,短期有息负债合计98.7亿元,现金短债比0.82。
到了2025年上半年,电建地产的财务状况依然未见起色,截至6月30日,营业总收入为32.16亿元,营业总成本为42.05亿元,净亏损为9.93亿元。
王海波身上的担子,还是蛮重的。他执掌电建地产已经三年多了,此前是个地产门外汉,出乎很多人预料。
上一篇:保利半壁店豪宅龟速,18米建筑高度首次曝光
下一篇:中海新城女掌门张欣,苦盼打翻身仗