大家好,这里是楼花网。
2月9日,东城区前门织补项目(居住、商业地块)B9-01等七个地块设计方案总平面图公布。
核心信息:
· 前门东区四合院项目第二版总平图公示
· 共28个院落,其中27个为住宅,一院一户
· 最大建面超720㎡,顶级稀缺资产
什么是“现代版四合院”?
传统与创新:
· 形制:保留四合院围合布局、青砖灰瓦、坡屋顶
· 功能:植入地库、电梯、智能系统、恒温恒湿等现代设施
· 格局:地上1-2层,地下1-2层,实现“天地人”三重空间
面积梯队:
· 主力面积:300-500㎡(占比约60%)
· 中等面积:500-720㎡(占比约30%)
· 顶级院落:720㎡+(占比约10%,地标性产品)
定价逻辑:
· 参考周边四合院交易:20-40万/㎡(稀缺文物级别)
· 本项目为“新建仿古”,预计定价15-25万/㎡
· 单套总价4500万-1.8亿

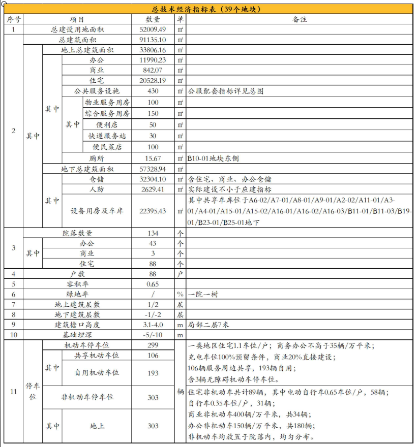
七个地块总建设用地面积约1.11万㎡,总建筑面积约1.95万㎡,容积率0.65。
其中地上建面7220.39㎡。商业345.34㎡保持不变,住宅建面调降至6268.64㎡(此前为6848.76㎡),相差的580.12㎡单独列为“梯梯间、电梯间、地库升降机”面积。
地下总建面12256.24㎡。包括仓储5719.41㎡,车库5729.06㎡,设备用房664.84㎡,配电室142.93㎡。
配有68个机动车位(含自用车位40辆,共享车位28辆),42个非机动车停车位。

方案首次公示共用间收到11份居民留言和1份公函,经梳理,涉及3项内容:
一是针对施工问题的诉求,其中8份为同一地址;二是咨询建筑立面;三是反映电力配置问题。
第一项主要是关于项目后续施工噪音及施工影响周边相邻现状房屋安全等相关问题,分局已责成建设单位做好施工安全论证和并与居民做好沟通工作。
第二项关于项目建筑立面效果的问题。建设单位回复中提到了一些细节方面的设计:
项目延续该区域胡同肌理,建筑高度随胡同道路走势高低错落,立面采用传统材质及工艺,保持老城青砖灰瓦四合院立面效果,采用蛮子门、如意门、窄大门等样式,使用传统的黑红净、深浅棕、铁红色等组合色彩,保持传统四合院风貌。
第三项意见的来源比较特殊,是来自国网北京城区供电公司的反馈意见,关于电力设施位置、占地面积等相关技术条件,应经专业电力咨询形成供电方案后开展后续工作。
对此,分局表示,已要求建设单位按照国网北京城区供电公司意见完善设计方案。

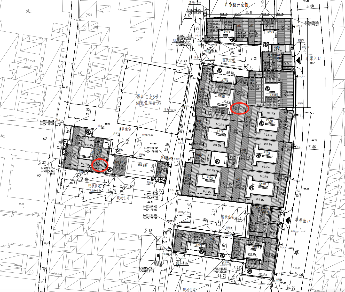
七幅地块由北自南纵列排布。
最北边两幅:
· 西侧B10-1地块,占地506.33㎡。
1#院为住宅,总建面388.68㎡,其中地上201.53㎡。
另配有快递服务站及厕所各一处;公共用地181.02㎡。
· 东侧B11-01地块,占地3608.38㎡,是本次公示地块中最大的一幅。
规划11个院子,建面自229-582㎡不等。
地下车库总建面1966.64㎡;另有公共用地258.59㎡。


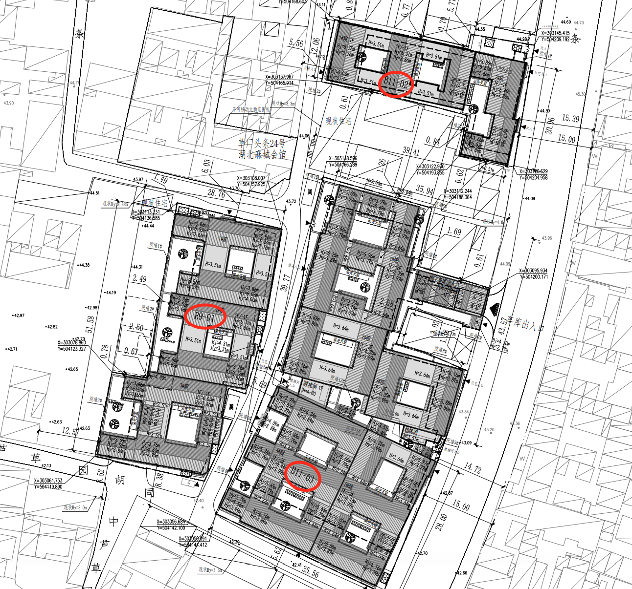
中间的三幅。
· B09-01地块,院落占地面积1204.1㎡,规划3座院落。
1#院,总建面497㎡,其中地上259㎡。
2#院,总建面472㎡,其中地上241㎡。
3#院,总建面588㎡,其中地上293㎡。

· B11-02地块,占地671.45㎡,规划2个院子。
1#院建面484㎡,其中地上272㎡。
2#院建面343㎡,其中地上159㎡。
另有公共用地46.75㎡。
· B11-03地块,占地2518.52㎡,规划5座院落,面积普遍较大。
最大的4#院建面超722㎡,仅地上建面就有416㎡;
1#院和5#院建面分别为600㎡和588㎡;
2#院和3#院建面分别为370㎡和361㎡以上。
车库总建面1867㎡;另有公共用地201㎡。


最南排的两幅地块。
· 西侧B16-01地块为商业用地,占地531.37㎡。
包括1个院子,建面586㎡,其中地上商业建面345㎡,地下仓储建面241㎡。
地下一层为配电室,建面约143㎡;另有公共用地68㎡。

· 东侧B19-01地块为住宅,占地2082.23㎡。
规划有5个院子,建面379-497㎡不等。
地下车库建面1896㎡;另有公共用地约194.21㎡。
其中地上建面156㎡,其余为地下空间。
院落中还留有43㎡的室外活动场地和集中绿地。


前门东区织补项目(居住、商业地块)总计39个地块,其中27个一类居住用地、10个综合性商业金融服务业用地、2个商业用地。
建设用地面积5.2万㎡,总建面约9.11万㎡,其中地上建面3.38万㎡,总共规划134个院落,包括:
办公院落43个,地上建面1.2万㎡;商业院落3个,建面842㎡;
住宅院落88个,地上建面2.05万㎡,共88户。
其余为物业服务、便利店、快递服务站、便民菜店等公共服务设施。
本次申报范围含7个地块,28个院子,住宅27户。
建设单位北京前门中绿里投资有限公司,成立于2024年5月16日,注册资本10亿元,法定代表人任金梁。
该公司由北京天街集团和北京海港房地产开发持股,具体股权比例未披露。
其中,北京天街集团为市管国企,隶属于东城区国资委;
海港房地产为央企中国绿发集团的全资子公司。


一类居住用地,国标为R1,意为市政公用设施齐全、布局完整、环境良好、以低层住宅为主的用地。
可以简单理解为高端低密度居住用地,包括别墅区、独立式花园住宅、四合院等。
根据项目建筑风貌设计,由大及小,从街区-街巷-地块三个层面逐级落实“一院一策”。
街区层面保持胡同走势,延续历史院落期向,保证胡同界面完整延续;
街巷层面尊重历史、丰富立面风貌多样性,檐口商度与相邻建筑协调,主次分明,高低有序,里出外进;
地块层面研究院落尺度,对进深、面宽、内院进行有序控制,使单体院落符合传统规制。
此外,由于本项目位于历史文化街区,落实“一院一树”要求,每350㎡建设用地应实土种植本地树种乔木1棵。
“城市织补”是一种城市更新理念,主要是在现有空置或已腾退地块上进行建设。
近年来,东西城已有不少“织补项目”。
它强调像织布一样精细地修补城市肌理,注重新建部分与原有历史风貌的有机融合与延续,关注空间、功能、社会和文化等多个层面的整合,而非大拆大建。
东城区前门东区织补项目通过精细的规划设计和多业态融合,旨在提升前门地区的人居环境和文化活力,努力实现历史保护与城市发展的平衡。
上一篇:城建国誉燕园二期“失踪”7个月!零网签零备案,王风华在等什么?
下一篇:亦庄新规划获批!打造“产业新引擎+宜居后花园”,5762公顷土地启动!