
大家好,这里是楼花网。
运河玖院一期(0705、0706、0708地块)开盘20天,战绩惊人,堪称通州市场“破局者”:
- 网签471套,去化率61.65%,签约面积6.08万㎡
- 成交均价6.16万/㎡,套均面积129㎡,主力客群为改善家庭
- 成交金额37.43亿,稳坐通州乃至北京近期楼市销冠宝座
这一成绩,远超市场预期,为二期入市注入强心剂。

一、产品制胜:得房率95%+花池赠送,精准拿捏改善需求
- 得房率碾压市场:
- 通过内嵌阳台、设备平台、阳光花池(全赠送)、270°转角花池等多重扩容,得房率高达93%-95%
- 部分边户三面赠送,奇偶错层阳台设计,创新力拉满
- 户型全覆盖:
- 109㎡三居(刚改主力)→ 260㎡大平层(顶改),适配不同预算家庭
- 150㎡以上户型主打高端改善,200㎡+层高3.5米,尺度感十足

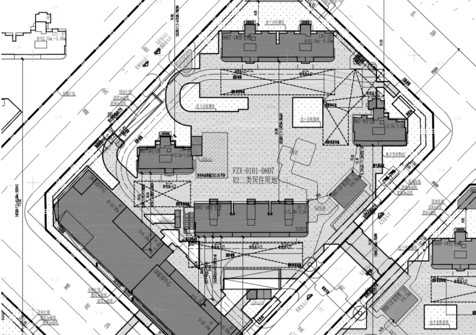
二、二期提速:四地块火速报规,延续产品基因
10月9日,二期(0807、0808、0810、0811地块)方案火速公示,趁热打铁:
- 规模:占地5.17公顷,总建面17.35万㎡,规划16栋10-28F洋房+高层
- 产品延续:保留首层架空、风雨连廊、运动场地、景观亭等一代亮点
- 交通王牌:紧邻地铁6号线北运河东站,在建副中心站(6号线、M101线、平谷线等换乘)

三、地段价值:副中心枢纽+运河生态,双重溢价
- 交通能级:副中心站综合枢纽(在建)是京津冀核心交通节点,能级堪比北京南站
- 生态资源:西邻京杭大运河,东靠六环高线公园,稀缺景观+生态溢价
- 配套预期:家园中心、人行天桥等规划,提升社区便利性与互联性

四、市场启示:产品力+稀缺资源=逆市热销
运河玖院的成功印证了两大逻辑:
- 极致产品力:高得房率+产品创新(花池、错层阳台)直击改善痛点
- 稀缺资源绑定:副中心枢纽+运河生态,形成差异化竞争力
- 快节奏推盘:一期热销后火速推二期,保持市场热度与品牌声量

总结:
运河玖院用“产品卷王”+“资源王牌”打破通州市场僵局,一期热销证明改善客群愿意为真实价值买单。
二期能否延续神话,关键看定价与产品微创新。
对于预算800-1000万的东部改善家庭,这个项目值得重点盯防!
上一篇:中海“卷王”降价5000,首钢东南区新盘跌至5字头
下一篇:海淀人居4.0版,北京隅搞了个顶层设计
温馨提示:提示:本内容为楼花网作品,未经允许不得转载。邮箱:louhuar@163.com