
大家好,这里是楼花网。
近日,北京城建房山北广阳城项目方案的公众反馈意见采信情况通告。
核心事件:
· 北京城建房山北广阳城项目规划引发争议
· 原规划疑似包含商业性质,拟调整为住宅
· 公示期间收到6条公众反对意见,涉及5大问题
为什么“商改住”是敏感操作?
政策红线:
· 土地性质变更需严格审批,非企业可擅自决定
· “商改住”可能影响区域职住平衡、商业配套
· 易引发公众对“规划随意性”的质疑
常见反对点:
1. 日照遮挡:新增住宅可能影响周边居民采光
2. 交通压力:居住人口增加,加剧拥堵与停车难
3. 教育医疗:配套资源是否充足
4. 商业需求:原有商业规划取消,生活便利性受损
5. 环境品质:居住密度提升,影响舒适度
城建意图推测:
1. 住宅更好卖:房山商业库存高,去化难;住宅需求相对稳定
2. 回款压力:商业开发周期长、资金沉淀大,住宅可快速变现
3. 政策博弈:或与相关部门沟通,争取调整支持
1、关于商业规划的意见
根据要求,FS00-0105-0016地块可按照《北京市建设用地功能混使用指导意见》设置1处商业设施,建筑规模不高于总建筑规模的15%;
经市场分析及论证,项目附近已有北京首创奥特莱斯、首开龙湖北京熙悦天街、绿地缤纷城、山姆会员店等完善的大型商业综合体配套设施,满足区域级商业配置需求;
0013地块为社区公服配套地块,设有菜市场,商业服务网点等便民商业配套设施,满足街区级商业配置需求;
同时,该项目用地内配置便民零售、便民餐饮等项目级商业配套,满足《北京市居住服务设施配置指标》有关内容,符合上位规划的有关要求。
也就是说,因为0016地块商业设施是非必要条件,并且项目周边的商业配套已经足够,所以在最终的方案上,0016地块并没有设置商业设施。
0016地块规划建面14382-18491㎡,按照15%的上限计算,商业设施建面大约在2157-2774平米㎡左右,取消之后,就变成了住宅面积。
按照出让文件,若0016和0015地块同期入市并统筹平衡指标,需配置商业设施地上建筑规模不超过6500㎡,并且应结合轨道站点统筹设置。

2、关于片区道路规划的意见
建设单位及设计单位回复意见:
本次规划道路系统依据已批规划,考虑南侧黄良铁路限制条件,结合《关于在控规编制和实施中增设街坊路的相关规定》中对道路间距的要求,
保障交通出行便捷性,除广阳城南路平行黄良铁路布局外,其他道路均为东西走向或南北走向。

3、关于0015地块大门开口位置的意见
0015地块北侧临城市绿化带,不允许设置出入口。
0015地块大门同和知筑出入口错位布置,旨在提升道路通达性和交通运行能力。出入口设计符合有关要求。
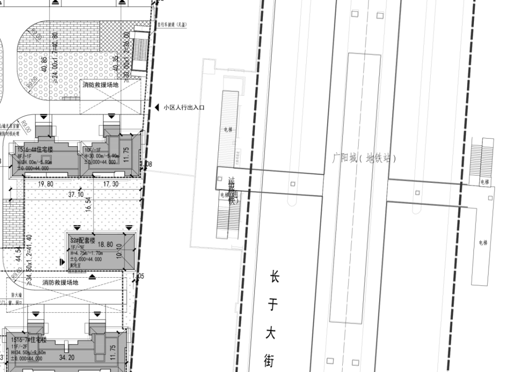
从总平图来看,项目北区(0015、0016地块)东西两侧均有一处人行出入口。
其中西侧为景观大门,东门出来经由地下通道直达广阳城地铁站。


4、广阳北路的立体结构管线排布的意见
广阳城北路及广阳城南路道路下设置雨水、污水、供水、中水、燃气、信息、电力等专业管道,采用明挖方式进行施工。碧波园二期及邑上公馆小区雨污水管道均接入新建排水管道内。深度较深的市政管线(雨污水)设置在道路中线附近,已尽量远离现状建筑。施工过程中采用支护工程措施减小开挖面宽度,降低对现状建筑物的影响。
分局意见:关于道路施工方案方面意见最终以实施主体及城市管理部门意见为准。
5、关于金阳西街棚改施工建设的意见
本项目设计方案不涉及金阳西街。棚改项目实施单位正在施工安置房、北广阳城南路、北路及金阳街部分管线工程;施工单位严格按照《北京市建设工程施工噪声污染防治规定》等相关法律依据,控制施工时间为6:00-22:00,未违反施工作业时间要求。
分局意见:关于施工时间方面意见以住房和城乡建设部门意见为准。

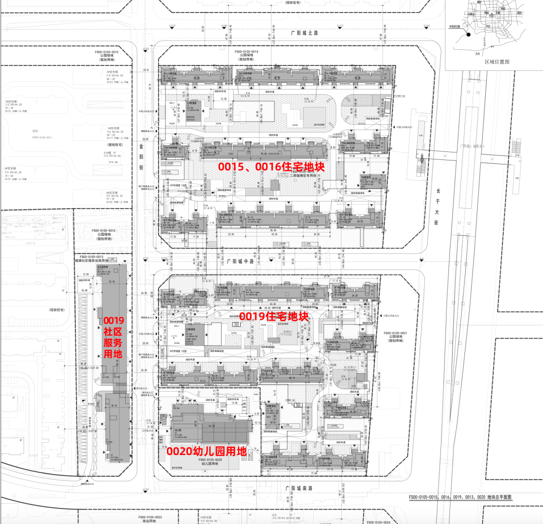
拿地回溯
2025年11月25日,北京城建以14.71亿元底价摘得房山北广阳城棚改项目0015等地块。
项目占地5.56公顷,规划建筑面积约9.6万㎡。
该地块在10月21日正式挂牌当天,相关设计单位招标计划就发出来了。
规划总建面9万㎡,估算投资11.82亿元。
招标单位北京城建瑞泰投资发展有限公司,是北京城建房地产的全资子公司,也是房山颐知筑项目的开发主体。
法定代表人、董事长杨娜,为北京城建集团开发公司副总经理。
项目经理、财务负责人为宋春刚。
北广阳项目分为五个地块实施,总用地面积约5.56公顷,规划总建筑面积约14.98万㎡。
其中,北侧0015、0016居住用地面积约2.39公顷,规划总建筑面积约6.8万㎡;
南侧0019居住用地面积约1.94公顷,规划总建筑面积约6.84万㎡。
住宅地块西南角为0020地块,规划1所12班幼儿园,用地面积约0.51公顷,规划总建筑面积约0.41万㎡。
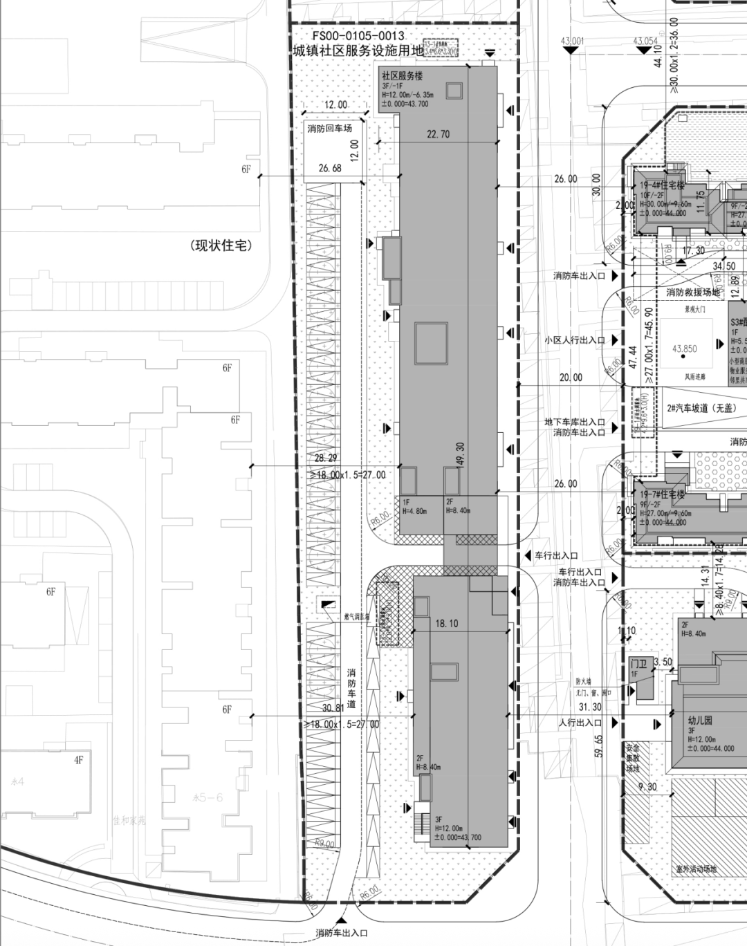
西侧0013城镇社区服务设施用地,面积约0.71公顷,规划总建筑面积约0.91万㎡。
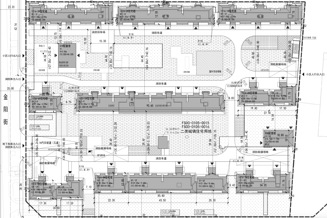
北区(0015、0016地块)
规划9栋住宅楼,三行排列,共419户。
· 北排3栋均为9层洋房,楼栋东西间距仅2.83米。
其中1#、3#楼面宽53.5米,进深11.75米,分三个单元;
中间的2#楼面宽62.3米,进深12.55米,同样是三个单元。
· 中间排3栋:4#楼东单元10层,面宽17.3米,进深11.75米;西单元8层,面宽19.8米。
中央楼王栋5#楼为8层洋房,首层架空,设置为邻里共享空间。四个单元总面宽95.6米,进深12.4米。
西侧的6#楼为9层洋房,总面宽20.9米,一个单元两户,最大进深12.2米。
· 南排3栋,东南角7#楼共11层,两个单元,总面宽34.2米,进深11.75米。
8#楼最大进深12.55米,做了阶梯式的错层设计,其中:东侧单元7层,面宽20.3米;中间两个单元8层,总面宽43.5米;西单元10层,面宽22米。
西南角9#楼东边单元8层,西单元10层,总面宽34.5米,进深11.75米。
两侧大门贯穿中央央轴,通过风雨连廊由西向东依次连接了:
物业服务用房/邻里共享空间→中央绿化广场→室外活动场地;
同时向南连接架空层。
南区(0019地块)
规划10栋住宅楼,也是大致按南北三行排列,共408户。
· 北排4栋:1#楼11层,两个单元,总面宽34.2米,进深11.75米;
2#楼、3#楼无缝连接,与北区8#楼隔街相对,也做了错落的楼层设计,两边高中间低,整体呈现出一个“凹”字。
其中2#楼11层,面宽20.4米,一个单元两户;
3#楼东边两个单元7层,总面宽43.4米;西单元11层,面宽22米。
这两栋楼的最大进深同12.55米。
西北角4#楼进深11.75米,东边单元9层,北向有退层,面宽17.2米;西单元10层,面宽17.3米。
· 中间3栋楼:5#楼总面宽37.18米,进深11.83米:东单元8层,北向有退层;西单元5层。
6#楼10层,北向退层设计。两个单元4户,总面宽48.1米,进深12.4米。
7#楼四个单元总面宽72.51米,进深11.75米。东边两个单元10层,西侧两个单元总高9层。
· 东南角的3栋楼:8#楼8层,北向有退层,两个单元总面宽34.28米,进深11.83米。
9#楼东单元7层,面宽17.38米,进深11.23米;西单元5层,面宽19.16米。
10#楼是小区唯一的小高层,总高14层,两个单元面宽41.3米,进深13.4米。
并排的9#楼和10#楼也是无缝相接,两侧距红线仅1米。

南区同样做了东西两处人行入口,西侧为景观大门,向内通过风雨连廊由西向东依次连接了:
小型商服(便利店)/物业服务用房/邻里共享空间→室外活动场地。
也是一条比较明显的中央景轴。
东门出来是一片规划绿地,打造成社区口袋公园,可以适当隔离地铁站带来的噪音影响。


房山首个“好房子”项目
这是北京“好房子”新规出台以来,房山首宗出让的地块。
出让文件提到,项目居住地块住宅产品设计鼓励建设单位按照好房子《技术要点》开展高标准设计,包括通过设置底层架空、风雨连廊、共享公共空间等举措增加公共空间,鼓励使用耐久性饰面材料,提升小区品质。
按需设置封闭或开敞阳台,每户阳台水平投影面积不大于套内建筑面积的 10%,进深不大于1.8 米。
同时也明确提到,建设单位须严格按照规划许可内容施工,严禁擅自封闭开敞阳台。


从总平图来看,大部分住宅楼南侧设置有通面宽开敞阳台,北向有多个设备平台。
阳台进深目测就很大,按照出让文件,应该都会达到1.8米的尺度。
部分户型南边是阳台 飘窗组合,侧边有转角飘窗,赠送面积同样不低。
小区19栋住宅楼里有18栋都是洋房,本身得房率就比较高,加赠之后,预计将达到房山目前为止的得房率天花板。
户型方面,预计面积段85-145㎡,100㎡以下小户型为主,套数占比约60%。
配建社区会客厅
0019地块西侧隔街规划建设一片社区服务楼,占地7069.33㎡,建面7776.263㎡,容积率1.1。
主体建筑总高3层,包含:
邮政局1处,建筑面积2200㎡;社区卫生服务站350㎡;社区助残服务中心300㎡;
社区文化设施700㎡;社区体育设施700㎡;社区养老服务设施1000㎡;
再生资源回收站50㎡;社区管理服务用房350㎡;公共厕所70㎡;
菜市场1000㎡;社区商业服务网点500㎡;品质提升型商业服务1处,建筑面积550㎡。

成本优势,背刺老盘
房山近一年没有涉宅地块出让,上次土拍还是去年的8月初,北京建工璟贤瑞庭所在的良乡0008地块,也是底价成交。
这次出让的地块位置上更靠近地铁站,北边的山姆会员店、宣武医院都在1公里范围内,步行可达。
地形也比较规整,正南正北朝向,应该说是这两年房山素质最好的一宗地了。
更重要的是楼面价1.8万元/㎡,比隔壁的和知筑地价还便宜了7000元。

项目位于房山区长阳镇,五环至六环之间,紧邻地铁房山线广阳城站。
周边有北京房山熙悦天街、首创奥特莱斯、北亚骨科医院、郊野生态公园、长阳公园等,生活配套较完善。
房山目前有大量新盘在售,地块南边就是北京城建·和知筑,西边3公里左右是颐知筑。
此外还有华润京熙润府、京华国贤府、建工璟贤瑞庭,都是近一年左右才开盘的项目。
上一篇:昌平新盘“转角花池”户型图曝光,赠送面积竟未收紧?
下一篇:昌平楼市松绑,三大新盘送面积有点疯狂