
大家好,这里是楼花网。
日前,中建方程国贤府户型图出来了。
其售楼处预计3月21日对外开放。
核心信息:
中建方程国贤府户型曝光,主力78-117㎡
最大杀器:得房率90%-95%+,昌平天花板
售楼处3月21日开放,预定“内卷王”席位
为什么得房率能到95%?
赠送解剖:
南向大阳台:进深1.8米,计一半面积
北向设备平台:全赠送,可改造为家政间/储藏室
L型转角飘窗:270°采光,全赠送
顶层露台:稀缺赠送,打造“空中庭院”
面积魔法:
以78㎡边户小三居为例:
建筑面积78㎡
赠送面积约8-10㎡
实得面积达86-88㎡,得房率110%+(感官上)
实质是“用赠送面积抵消公摊”,实现“零公摊感”
定价底气:
昌平主流得房率78-82%
国贤府做到90-95%+,产品力代际领先
预计定价6.5-7万/㎡,用“实得单价”碾压竞品 





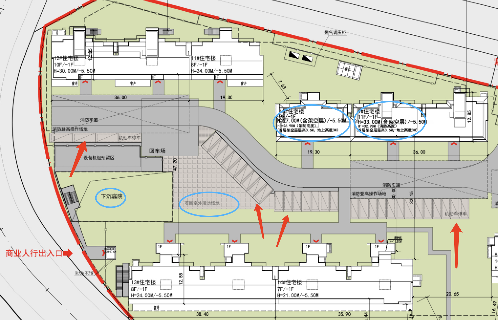
这是北京主城区的首座国贤府系项目,由中建方程操盘。
位于丰台区北宫镇,总用地面积约3.18公顷,总建筑面积约7.37万㎡,其中:
地上建面4.93万㎡,地下约2.44万㎡,建筑高度33米(最高),绿地率30%。

14栋住宅楼,全洋房社区
总共约508套房源,户均97㎡。
1#楼总高10层,两单元4户,共40户,东边户为78㎡小三居,其余为建面约92㎡户型;
2#楼总高10层,两单元4户,共40户,建面约92㎡;
3#楼8层:两单元4户,共32户,边户78㎡/中间户92㎡;
4#楼10层:两单元4户,共40户,东边户78㎡,其余为92㎡;
5#楼8层:两单元4户,共32户,边户78㎡/中间户92㎡;
6#楼11层、7#楼9层:均为首层架空,每栋楼两个单元4户,共72户,均为105㎡户型;
8#楼王栋总高10层,四单元8户,共80户,两端单元边户106㎡/中间户105㎡,中间两个单元为顶配117㎡户型;
9#楼11层,首层架空,两单元4户,共40户,东边户为78㎡小三居,其余为92㎡户型;
10#楼9层,首层架空,一单元2户,共16户,建面约92㎡;
11#楼8层,一单元2户,共16户,建面约92㎡户型;
12#楼10层,两单元4户,共40户,西边户为78㎡小三居,其余为建面92㎡户型;
13#楼8层,两单元4户,共32户,建面约92㎡;
14#楼7层,两单元4户,共28户,东边户为78㎡小三居,其余为建面92㎡户型。

4个架空层,公区配置拉满
大门位于小区西侧中间位置,没有依红线斜建,而是退线十余米,保证大门正位,坐东朝西。
入口景观带十分阔大,从平面图就能看出飞檐翘角的中式大门。
国贤府的园林一贯是纯中式风格,多水系和山石。
在方程国贤府地块出让文件中也提到,要求注重建筑文化内涵和品质,提升建筑设计质量,体现中国特色、古都风韵、时代风貌。
三进式门庭,入口配套楼由风雨连廊环绕,做物业服务用房、社区综合服务用房。
与南侧紧邻的6#、7#楼架空层形成主会所空间。
小区中央有大面积中庭湖景园林。 
另外两栋带架空层的楼栋在北边,为9#、10#楼。
与西侧室外活动场地、下沉庭院形成一片泛会所空间。
下沉庭院南侧有一个专门的商业人行出入口,内设电梯,推测有地下商业空间。
地面人车不分流
粗略数了一下,小区地面有90多个机动车停车位。
分布在消防车道周围,除了大门和中央景轴的位置,其它楼栋底下都有停车位。
小区南北各有一处地库出入口,与消防通道共用出入口,而南侧出入口特别标记了“车行出入口”,且设置有出入口广场、非机动停车位。


小区地形呈倒三角状,多边角空间,为了保证户型朝向,楼栋采用了点状排列方式。
14栋住宅楼集中建在三个角的位置,中间留出大面积空间打造园林。
楼栋均为正南正北朝向,面宽资源较好,小户型也能有不错的采光和通透性。
缺点是部分楼栋距离过近,容易形成对视。
例如东北角的1#楼和2#楼之间,距离仅有4米。
2#楼东边户的南阳台,1#楼西边户的北设备平台,隔空对话毫不费力。
方程国贤府,中建智地甘当配角
“府”系作为中建智地产品系中的高端序列,目前在北京已落成三座国贤府。
中建房山国贤府(西府佳苑)、昌平的北京国贤府(一期盛世文庭、二期逸贤华庭)、京华国贤府(学府观园)。
昌平的国贤府PARK上个月底也已公示了总平图。
中建方程国贤府算是第五座国贤府,并且是目前唯一建在城六区的国贤府。
值得一提的是,最新的这座国贤府却是由中建方程来操盘,中建智地仅持有项目公司7%的权益。
之所以会放心地将国贤府这个核心产品系交与中建方程操盘,主要还是由于两家企业同为“中建”系。
中建智地和中建方程都是中国建筑集团有限公司(简称“中建集团”)下属单位,但分属不同层级和业务线:
中建智地是中建一局旗下,属于中建集团的三级子公司。
而中建方程则直属中建集团,前身为中国建筑的建筑事业部,主要承担中国建筑直营房建业务的实施、高端房建项目的管理、房建业务经营模式的创新等职能,2014年,组建成立中建方程,专业从事城市综合开发和城市运营业务。
根据规划,公司未来将继续择机拓展房地产开发业务。
今年2月初,在中建方程2026年投资拓展系统工作会议上,中建方程党委书记、董事长周宇騉出席会议并讲话。会议提出要全力以赴拼市场,强化内部能力建设,锻造政治担当、专业精进、勇担责任、善于攻城拔寨的市场拓展团队,做到 “内强而王”。
近年来,中建方程收入有所波动。 2022-2024年及2025年前三季度,中建方程实现营业总收入分别为108.41亿元、86.81亿元、89.86亿元、52.95亿元;净利润分别为14.76亿元、9.64亿元、9.09亿元、4.03亿元。
截至2025年9月末,中建方程累计完成城市综合开发项目投资数量达48个,累计投资规模超过 1000亿元;在建及在售房地产项目共13个,其中2025年以来新增项目4个,主要位于一线及新一线城市。
上一篇:北京土拍,"内定”成风
下一篇:保利海淀“王炸”定名:熙瑞,165-275㎡低密藏品大宅!